农业资源与环境专业实验室Ⅰ简介
l 实验室概况
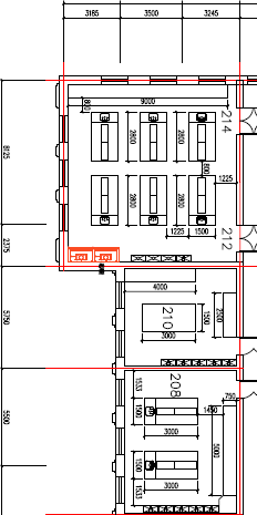
农业资源与环境实验室Ⅰ设在土壤楼A座2楼,由3个实验室组成(208,210,212,214),其面积为248平方米,主管实验教师为刘慧实验师。

图1 农业资源与环境实验室Ⅰ平面布置图
l 实验室课程设置
农业资源与环境实验室Ⅰ主要面对麻豆网
农业资源与环境专业,农麻豆网
气象专业,水利麻豆网
水土保持专业的本科生及研究生。主要承担课程为土壤环境分析、土壤学Ⅱ,年均课时量为9600人学时。
表1 农业资源与环境实验室Ⅰ主要课程设置情况表
实验项目名称 |
实验课程名称 |
实验课程序号 |
土壤样品的采集 |
土壤质量分析 |
|
土壤样品制备 |
土壤质量分析 |
|
土壤水分的测定 |
土壤质量分析 |
|
土壤容重和孔隙度测定 |
土壤质量分析 |
|
土壤机械组成和土壤质地分析 |
土壤质量分析 |
|
土壤有机质含量测定 |
土壤质量分析 |
|
土壤酸碱性的测定 |
土壤质量分析 |
|
土壤全氮含量测定 |
土壤质量分析 |
|
土壤碱解氮含量测定 |
土壤质量分析 |
|
土壤硝态氮含量测定 |
土壤质量分析 |
|
土壤有效硫含量测定 |
土壤质量分析 |
|
土壤全磷含量测定 |
土壤质量分析 |
|
土壤有效磷含量测定 |
土壤质量分析 |
|
土壤全钾含量测定 |
土壤质量分析 |
|
土壤速效钾含量测定 |
土壤质量分析 |
|
土壤缓效钾含量测定 |
土壤质量分析 |
|
土壤阳离子交换量含量测定 |
土壤质量分析 |
|
土壤水溶性盐总量测定 |
土壤质量分析 |
|
土壤水溶性CO32-和HCO3-含量测定 |
土壤质量分析 |
|
土壤水溶性Cl-和SO42-含量测定 |
土壤质量分析 |
|
土壤水溶性Ca+和Mg2+含量测定 |
土壤质量分析 |
|
土壤水溶性K+和Na+含量测定 |
土壤质量分析 |
|
土壤水分的测定 |
土壤学Ⅱ |
|
土壤容重和孔隙度测定 |
土壤学Ⅱ |
|
土壤机械组成和土壤质地分析 |
土壤学Ⅱ |
|
土壤有机质含量测定 |
土壤学Ⅱ |
|
土壤酸碱性的测定 |
土壤学Ⅱ |
|
土壤碱解氮含量测定 |
土壤学Ⅱ |
|
l 实验室建设情况
实验室主要以实验教学为主,实验室仪器设备主要有电子天平、紫外分光光度计、可见分光光度计、半自动定氮仪、火焰光度计、高温电阻炉、离心机、远红外消化炉、恒温培养箱、鼓风干燥箱等,共计34台,为本科生和研究生实验教学提供了硬件保障和技术支撑。
实验室采用教师多媒体演示,学生实际动手操作,观察实验现象,记录实验数据,分析实验数据,发现并解决问题的教学模式,将传统的验证性实验逐渐转变为探索性实验,有效地提升了学生的学习兴趣,激发了学生的创新思维,促进了学生创新和实践能力的培养。


图2农业资源与环境实验室Ⅰ室内环境






图3农业资源与环境实验室Ⅰ主要仪器